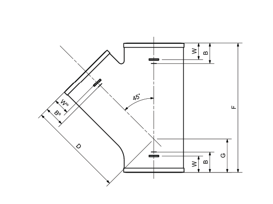
| ASA Code |
Size in Inch |
B in mm |
BB In mm |
D in mm |
F in mm |
G in mm |
W in mm |
WW in mm |
|---|---|---|---|---|---|---|---|---|
| 1314 | 2 | 38 | 38 | 117 | 168 | 51 | 29 | 29 |
| 1316 | 3 by 2 | 38 | 38 | 135 | 168 | 38 | 29 | 29 |
| 1318 | 3 | 38 | 38 | 146 | 203 | 57 | 29 | 29 |
| 1320 | 4 by 2 | 38 | 38 | 165 | 203 | 43 | 29 | 29 |
| 1322 | 4 by 3 | 38 | 38 | 165 | 203 | 43 | 29 | 29 |
| 1324 | 4 | 38 | 38 | 179 | 241 | 62 | 29 | 29 |
| 1326 | 5 by 2 | 51 | 38 | 191 | 205 | 24 | 38 | 29 |
| 1328 | 5 by 3 | 51 | 38 | 203 | 246 | 43 | 38 | 29 |
| 1330 | 5 by 4 | 51 | 38 | 216 | 284 | 62 | 38 | 29 |
| 1332 | 5 | 51 | 51 | 241 | 321 | 79 | 38 | 38 |
| 1334 | 6 by 2 | 51 | 38 | 210 | 211 | 13 | 38 | 29 |
| 1336 | 6 by 3 | 51 | 38 | 222 | 248 | 32 | 38 | 29 |
| 1338 | 6 by 4 | 51 | 38 | 235 | 284 | 49 | 38 | 29 |
| 1340 | 6 by 5 | 51 | 51 | 260 | 318 | 65 | 38 | 38 |
| 1342 | 6 | 51 | 51 | 273 | 357 | 84 | 38 | 38 |